ENLACE TV
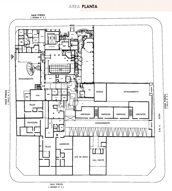
Este canal de televisión es de habla hispana y se transmite su señal por Satélite, se desarrollaron instalaciones en base a sus necesidades de crecimiento en una zona Urbana en el sector de Pavas, San Jose de Costa Rica. Su Diseño y construcción fue realizado por fases en etapas de crecimiento alrededor de una cuadra completa de 100 mts. por 100 mts.
Se diseñaron instalaciones de Oficinas Sets de TV, salas de juntas, comedores, centros de Edición , cabinas de Audio, Control Master, Salas de Tecnología y Sistemas, Cuartos de Transmisión Satelital, Cuartos operativos de Ingenieros de Sistemas, Bodegas, Estacionamientos, Cuartos de Emergencia y Salas de Postproducción, Sales VIP, Green Rooms y Sistemas estructurales para Antenas de Satélite en diferentes puntos del país con materiales especiales contra la humedad en zonas montañosas.
Toda la construcción y remodelación se hicieron con el canal operando internamente en diferentes etapas del 2001 al 2013.
Desarrollo del Proyecto.
Los procesos de trabajo y desarrollo del Proyecto, se hizo bajo un esquema cronológico con ajustes en sus tiempos de operación y programación de la TV.
También se realizaron desarrollos de Diseño para este Canal en Costa Rica y para otros países como EE.UU., Colombia, Honduras, México y Guatemala.






